找回密码
 注册会员

QQ登录

只需一步,快速开始

扫一扫,访问微社区

楼主: 七月的风

[求助] 磨床头架轴承问题

  [复制链接]
发表于 2014-9-5 21:21:06 | 显示全部楼层
关于安装方式,楼主拆原机的时候没留意啊?
3 s& K- V. ?0 Y. S" h  \轴承上做的记号,是给配对用的。买的时候,配好对的轴承是拴在一起的,或者在同一个包装盒里。
- t) G! U/ J# B; {' d9 C+ C两个轴承间如何有隔套,那么内外隔套是有高度差的。轴承厂会明确给出这个差值。
. r7 n4 B  N2 \6 E- M& _- z

点评

没见过轴承厂给出隔套的高度差。 一般都是配研,用工装组装后测量预紧力。 或者放上一个隔套,测量另一隔套的尺寸,然后配研。  详情 回复 发表于 2014-9-6 07:28
发表于 2014-9-6 07:28:11 | 显示全部楼层
ywjianghu 发表于 2014-9-5 21:21
. E/ O% n  T; u# m1 l" ~/ H; w$ m. {关于安装方式,楼主拆原机的时候没留意啊?
: ^( a) w) t' |% S9 s+ n0 c8 ]3 S) L轴承上做的记号,是给配对用的。买的时候,配好对的轴承是拴在 ...
. ~# |4 O' J1 \. }. Y
没见过轴承厂给出隔套的高度差。: m8 e% d' d) V; w! b+ s4 w& B8 ?
一般都是配研,用工装组装后测量预紧力。& U" Y. @5 _$ \3 X, p. w
或者放上一个隔套,测量另一隔套的尺寸,然后配研。
% P$ u; @: d% f1 f, w0 d0 h

点评

你好! 能否介绍一下这里测量预紧力的方法?  详情 回复 发表于 2014-9-7 21:25
发表于 2014-9-7 21:25:24 | 显示全部楼层
zxq0220 发表于 2014-9-6 07:28+ k& G# S1 E, m% W: r, Y( j! L
没见过轴承厂给出隔套的高度差。6 a% u8 |) W+ _7 x! ?
一般都是配研,用工装组装后测量预紧力。
% q% o/ q9 C3 F; E  W9 x# F或者放上一个隔套,测量另一 ...

( b- o  K% ~4 s  V7 v你好!  f% B( ]$ \- e5 \% K. y
能否介绍一下这里测量预紧力的方法?- j; h1 H1 h8 G- s
发表于 2014-9-8 08:23:56 | 显示全部楼层
轴承工艺.pdf (21.18 KB, 下载次数: 37)

点评

谢谢你上传资料! 这个资料是某个企业的内部作业指导? 有几点不明白: 1,内圈施压,应该施加多大压力? 2,测量内圈尺寸,意思是测量内圈的间隔距离吧? 这个间隔距离比较难测量,因为有外圈挡着,只能从轴承  详情 回复 发表于 2014-9-9 20:16
发表于 2014-9-9 09:31:41 | 显示全部楼层
头件拨盘轴承,如果是两个应该背靠背装配
+ q/ i( {1 h5 n/ J& a% y
发表于 2014-9-9 18:50:07 | 显示全部楼层
主轴可以p4级别的轴承,配好对的。贵点值得。
9 G9 }$ A) v( f9 H
/ h. P; X0 ?' j4 J3 r/ n$ c/ `背对背还是面对面根据自己设备使用情况:
; ~  m) y# ~/ C; W9 G2 ], S2 h% a' f5 ]9 G1 o7 U! _8 k
轴向受力大还是径向受力大,参考相关资料。
7 G. j  h9 \: A+ c. f( {9 ]
* @2 s$ {" Q0 N: `8 j3 D6 x装配的主轴本身精度要高,两轴承位的同心度和圆度须在0.001mm以内。- W( w$ Y6 v' W2 I( Q

$ S6 J0 X9 _- P+ D轴承润滑油脂适当,不可太多,影响散热。
, u$ e# U! }. X: x7 d- D0 t9 h+ n% T" X; G- y  w. h
装配环境必须清洁干净无尘。: m" W) }# Y" ~; K

  Z4 n1 Y8 C1 T看自身主轴结构,一般有弹簧消除间隙。* L% N8 c1 R. T( \5 e" W, R7 H, x9 ?

+ y' \: x, y4 ~* t  o* j" A轴向有串动空间,因弹簧有力,所以轴不会串动。/ o' w+ U$ f5 Z& \5 ~: W/ C

! s6 C( B# {" K7 S) K) ]) L同时,主轴发热时,轴向串动空间可以让轴受热不受限,不卡死。
7 v& S% X% ]% I$ c! B
- x$ E. J( I5 ^; w装配好先低速运转(如果有低速度)1-2小时。可以发热后稳定。
8 {: u* y/ H- z2 K3 M; G. y* V4 n0 m) v7 B8 B  b
高速运转0.5小时。可以发热后稳定。
0 `2 Z4 b$ N" {; W; u" j, w1 a7 x: J+ o& j
所有发热不可高于摄氏30°
) N; ?9 o+ z9 E0 v- x2 r. J: m9 q( k6 I7 `- c
听声音,要平稳无噪声。
- d& e2 ^. d5 n8 s% O8 J% H! d% A/ q# n
: L4 M, o: r* R调试完毕,无异样,
" C0 m$ v! L, j8 X5 q4 |) _& G! U& z, o2 S
打表测主轴工作位精度,跳动小于0.001mm。
# _* n" I( D# Q+ b9 j0 R( V! T: C3 E6 s% D) I9 c; u
合格。成功了!
' n. b5 `! g# i4 j: Z+ F; l; c" m, A( N( V
如有发热烫手和噪音尖叫,立即停机。( C9 d7 R. f; p" C) M
8 d# R; H2 K! ^6 G
重新拆解,检测各个零部件,总有地方出了问题。  N# R7 d$ I* n+ ?2 M8 w0 s

( _9 ]8 `8 M" v. w. P" X一回生二回熟。- i) G& J3 L5 }6 H& B+ v$ i& ]
: ^3 o3 n- M5 ]6 A. x2 h
最后被你降服。1 ~/ m8 u" T! o) Y, w; s
; T  l# g+ s, G6 Q7 p5 L

  G" z  K" [- z
% u7 \  P* S4 G& v$ B8 k7 x  n( |- k
! ]! v" Y1 `+ j. i# M  d

. F& ~2 A$ B  G  o- K, L# P+ V9 j
, o. G% g$ h- z. f6 A" E+ K" Z) j4 h  T9 S. Q: x; p8 v0 Z

评分

参与人数 1威望 +25 收起 理由
研磨者 + 25 很给力!

查看全部评分

发表于 2014-9-9 20:16:37 | 显示全部楼层

( h( {# g4 d- L) A; J4 D& C# G) Y) y谢谢你上传资料!8 e8 U7 [0 z' [* U8 y
这个资料是某个企业的内部作业指导?
% a1 i4 m* M, V; g, r( H有几点不明白:
5 n+ b" O/ t7 [( u5 w  N2 c' K1,内圈施压,应该施加多大压力?
# K# M, ^/ f8 |: ?2,测量内圈尺寸,意思是测量内圈的间隔距离吧?0 a! J  b1 y; G& L- Z1 _3 g
这个间隔距离比较难测量,因为有外圈挡着,只能从轴承内孔中伸进量块去,要测量准,难。
+ ?  \3 I2 T, ^  |3,用测量摩擦力的方法作为检验标准,似乎不是那么合适。因为摩擦力随接触面的表面光洁度变化,和接触面的润滑状态还有关。* L9 r  O4 _- |* e# p3 x
纯粹属于想象,请指点。
& d4 X- u# B# J. L

点评

内圈施压只要能消除轴承间隙就行,一般用手压紧即可,但要注意保持平衡,不要歪斜。 如果内圈测量不方便,可以将轴承方向反向摆放,在轴承外圈施压,测量轴承外圈的间隔。不过误差可能会大。 测量只是确定隔环需要  详情 回复 发表于 2014-9-10 07:48
测量的是内圈和外圈之间的高度差。 这种规格的轴承施加的力一般在200N~400N左右,可以多试验几次得出确定值。因为轴承的游隙消除后再施加有限的力不会有明显变化。 可以做一个小工装,在接触内圈的地方挖几个洞。  发表于 2014-9-9 23:24
发表于 2014-9-10 07:48:33 | 显示全部楼层
ywjianghu 发表于 2014-9-9 20:16! q5 n, K' |, ]  o4 m1 g
谢谢你上传资料!# x2 @- n5 }- ]
这个资料是某个企业的内部作业指导?
' A9 v+ a. P. z7 T有几点不明白:

, p$ e/ P3 W% z. H内圈施压只要能消除轴承间隙就行,一般用手压紧即可,但要注意保持平衡,不要歪斜。
5 W! ]8 y+ e. Y1 `0 d如果内圈测量不方便,可以将轴承方向反向摆放,在轴承外圈施压,测量轴承外圈的间隔。不过误差可能会大。
7 h+ {- `1 z3 F: g$ ~& R* h; `测量只是确定隔环需要研磨的尺寸,有误差可在后面测量预紧力时再调整0 ?' ^$ h0 i! ?1 B
因隔环两端面是研磨表面,轴承端面也是磨削表面,所以摩擦力是一定的,不用考虑太多。& Y% W5 [4 S" F' V: |1 a- k
发表于 2014-9-10 08:09:44 | 显示全部楼层
一对p4的轴承,折腾来折腾去,哐当,完蛋了!不信都买一对来试试看!呵呵!
发表于 2014-9-12 16:06:33 | 显示全部楼层
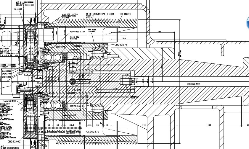
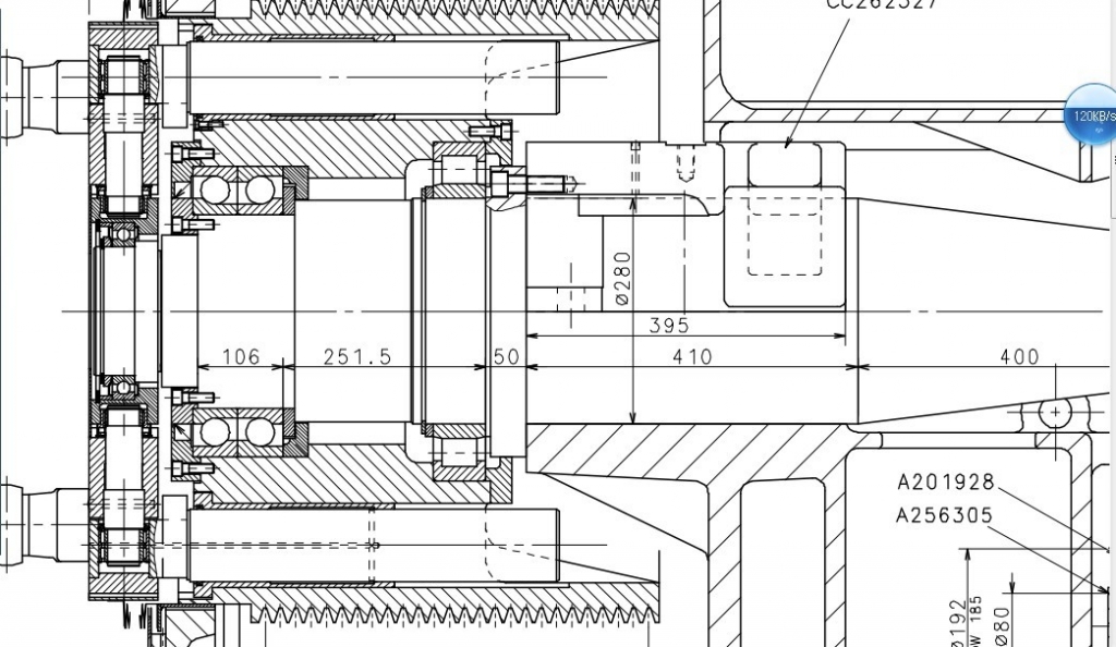
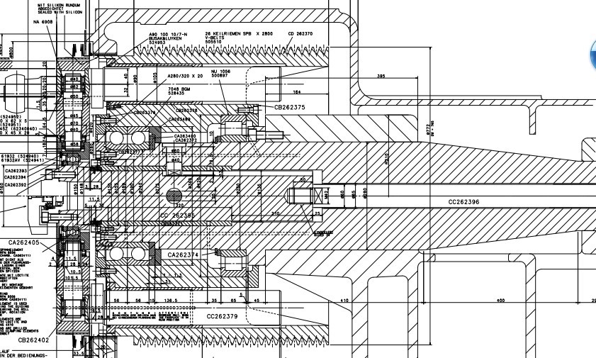
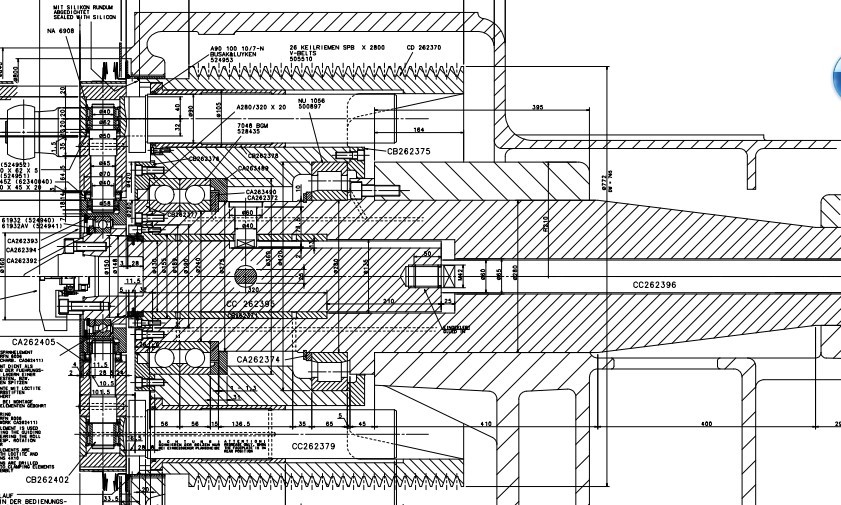
瓦德里希轧辊磨床头架图纸
1.jpg
QQ图片20140912160938.jpg
发表于 2014-9-19 15:52:17 | 显示全部楼层
找专业人来装配。顺道也可以学习下,主轴轴承装配不好会发热哟
发表于 2014-9-23 10:50:04 | 显示全部楼层
前面用P4后面用P5就可以了
发表于 2014-9-23 23:20:43 | 显示全部楼层
我发现真好多人才………。…大哥呀这种是叫推力轴承呀。不要装错了呀你买回时不是已捆好的吗。要同方向呀。不要弄错了。这种轴承有ABCD型号的。不同的有不同的精度。安装时一定记得不要打敲呀。要轻推进去。力要平行。不能硬来呀
发表于 2014-9-27 08:05:37 | 显示全部楼层
怎么样拆就怎么样装
发表于 2014-10-14 13:36:09 | 显示全部楼层
学习一下拿分走人呵呵,楼下继续!
发表于 2014-10-31 12:18:59 | 显示全部楼层
高精度轴承精度检测、预紧调整,都是有精密工装的,讲的是安装后精度微米级,预紧调整也几乎是微米级的(重载可以是丝级的),玩到几万转,一对轴承就上千啊。慎重慎重!比如外圆磨头架,转速低,但精度要求高,重载预紧有点过,轻载又不够,所以常见的是中载。至于预紧对轴承精度的影响,都百度一下吧。
, H. E* G2 t+ g0 c% [。。。。。。。。。。。。。。太多了,不说了。一只微米表加平板是在最恶劣状况下玩精密轴承是起码条件。都读书去,书上都有!
您需要登录后才可以回帖 登录 | 注册会员

本版积分规则

中国磨床技术论坛
论 坛 声 明 郑重声明:本论坛属技术交流,非盈利性论坛。本论坛言论纯属发表者个人意见,与“中国磨削技术论坛”立场无关。 涉及政治言论一律删除,请所有会员注意.论坛资源由会员从网上收集整理所得,版权属于原作者. 论坛所有资源是进行学习和科研测试之用,请在下载后24小时删除, 本站出于学习和科研的目的进行交流和讨论,如有侵犯原作者的版权, 请来信告知,我们将立即做出整改,并给予相应的答复,谢谢合作!

中国磨削网

QQ|Archiver|手机版|小黑屋|磨削技术网 ( 苏ICP备12056899号-1 )

GMT+8, 2026-3-16 21:04 , Processed in 0.143739 second(s), 21 queries .

Powered by Discuz! X3.5

© 2001-2025 Discuz! Team.

快速回复 返回顶部 返回列表